Effektive og behagelige arealer, med lysinnslipp fra alle kanter

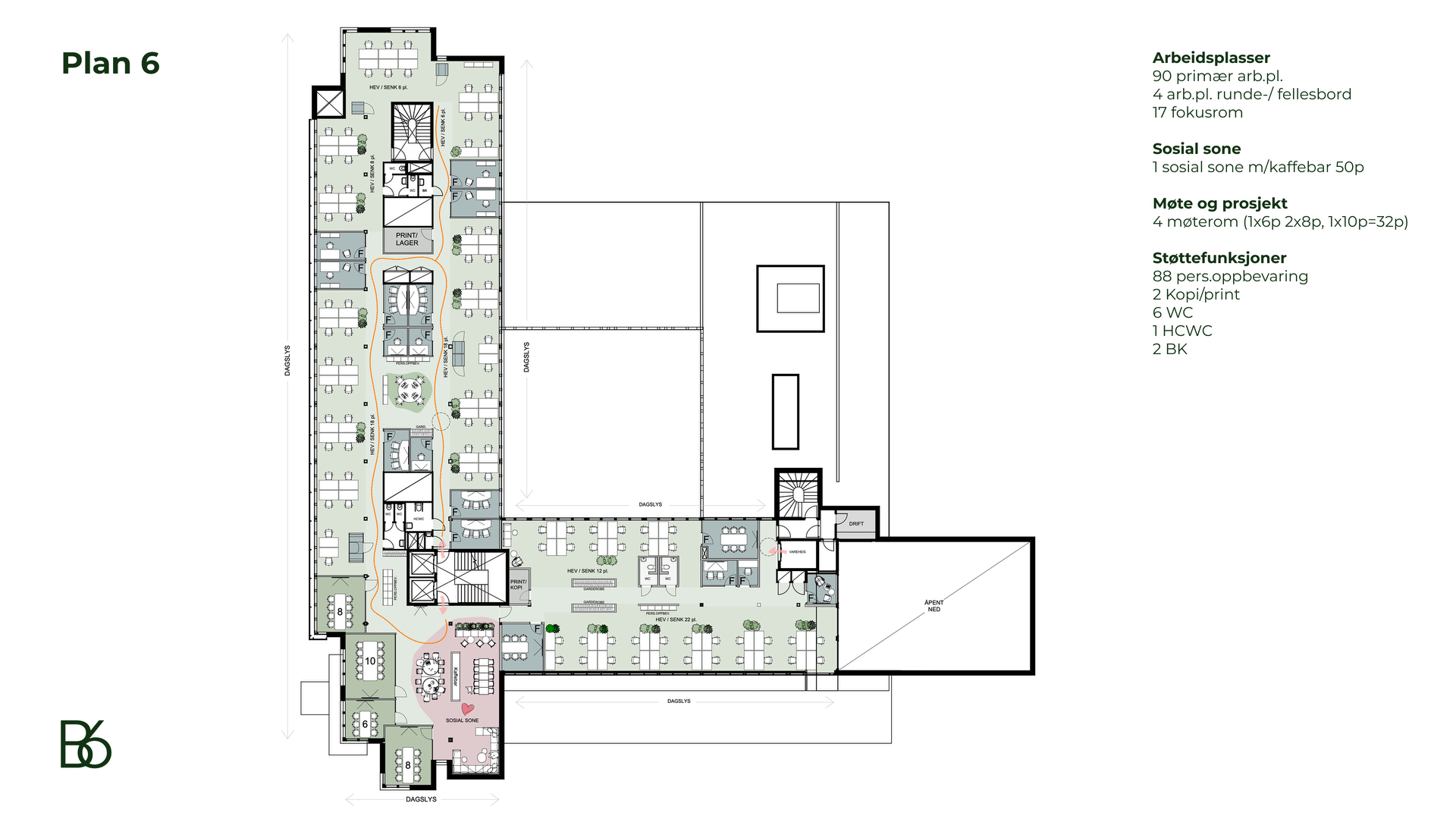
Etasjeplanene i Brynsalléen 6 er omkranset rundt en åpen lysgård, noe som gir godt lysinnslipp fra alle sider. Arealene er store og fleksible og vil tilpasses dagens arbeidsplassfilosofier – med en fornuftig miks av åpne kontorfellesskaper, cellekontor, støttefunksjoner, møterom og sosiale soner.

Storebrand har i samarbeid med IARK Interiørarkitekter utarbeidet forslag til nye planløsninger og oppdelinger, men fortsatt med gode muligheter til å tilpasse planløsning og utforming til nye leietakeres behov.

  • Byggets arealer fordeles over ni etasjer, hvor tredje til og med åttende etasje er kontorlokaler.

  • Ledig arealer fra 5 000 kvm til 15 800 kvm.

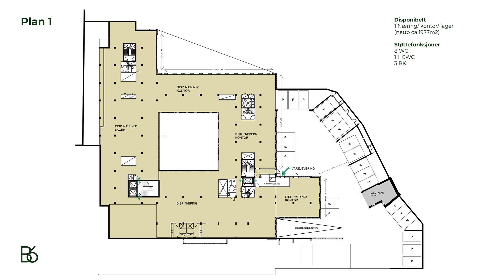
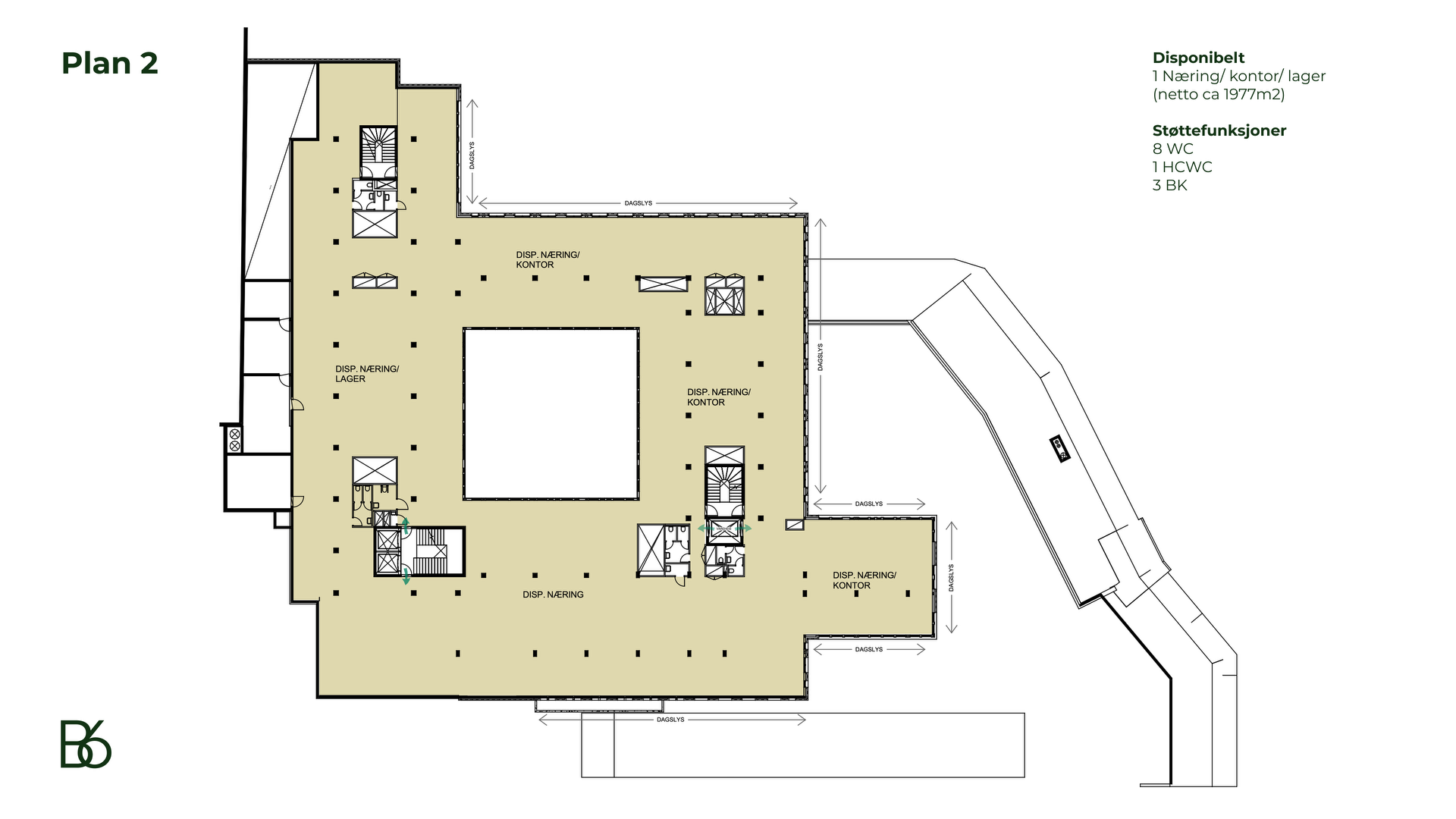
  • Andre etasje kan også etableres som kontor, eller en kombinasjon av kontor og lager. Første etasje er tiltenkt lager, logistikk eller handelsareal.

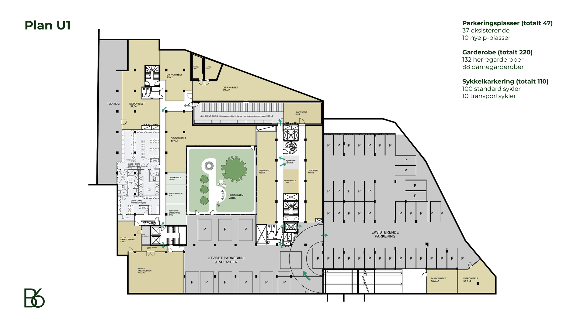
  • I underetasjen er det parkering for byggets brukere og gjester, treningsrom, dusj, garderober og sykkelparkering.

  • Eiendommen kan både tilpasses for en énbruker eller flere leietakere. Etasjeplanene kan enkelt deles inn i flere ulike utleieenheter.

Enheter

Enhet
Status
Plantegninger